Product omschrijving
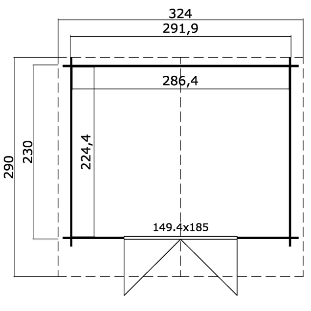
Het tuinhuis Baltimore 292x230 heeft een fundamentmaat van 292cm(b) x 230cm(d). De 28mm dikke vurenhouten wanddelen zijn uitgevoerd met veer en groef en een wind en waterkerende hoekverbinding. De traditionele blokhut-stapelbouw methode zorgt voor een sterke en stabiele constructie. De dubbele deur is voorzien van echt glas, de houten kruisverdeling wordt los meegeleverd waardoor u zelf de keuze heeft of u deze wilt gebruiken. Het basispakket wordt geleverd inclusief montagehandleiding, onderdelenlijst, alle benodigde bevestigingsmaterialen, deur- en raambeslag en een houten windankerset. Dit tuinhuis wordt zonder dakbedekking geleverd, hiervoor kunt u gelijktijdig dakshingles bestellen in de kleur zoals u wenst. Het stapelbouw blokhut systeem is door de handige doe-het-zelver prima zelf te monteren en dit tuinhuis wordt als bouwpakket bij u thuis geleverd.Impregnatie : de verduurzaming van uw blokhut middels druk-impregnatie geeft een langdurige bescherming tegen aantasting door schimmels, insecten en bacteriën. Impregnatie geeft een tijdeljke licht-olijfgroene kleur en verkleurt naar grijs. Impregnatie is geen eindafwerking en beschermt niet tegen onze weersinvloeden. Om de blokhut ook te beschermen tegen de effecten van droogte, vocht en zonlicht (UV) dient u de blokhut rondom te behandelen en te onderhouden met een daarvoor geschikte verf of beits. Met een juiste behandeling geeft u de blokhut een optimale bescherming tegen onze weersinvloeden en daarmee dus tegen krimp en uitzetting. (scheuren en kromtrekking). Om kromtrekken van deurbladen te voorkomen is het belangrijk om deze rondom meerdere malen met hiervoor geschikte verf of beits te behandelen.
Specificaties
| Artikelnummer | 91890 | 
| Collectie | Blokhutten met zadeldak | 
| Kleur | Olijfgroen Geïmpregneerd | 
| Formaat | 292x230 | 
| Gewicht per st | 374 Kg | 
| Stuks per eenheid (st) | 1 stuks/st | 
Levering
Wij proberen de aangeschafte materialen binnen 3 tot 10 werkdagen te leveren. 
Heb je vragen over levertijden/voorraden, neem dan gerust contact met ons op via het contactformulier. Bellen kan ook: 0412-613320.
Informatie over het afleveren en lossen
- De materialen die je besteld hebt, lossen we naast de vrachtwagen. Uiteraard probeert de chauffeur de materialen zo dicht mogelijk bij de gewenste losplaats af te leveren. De chauffeur bepaalt ter plekke of de gevraagde losplaats mogelijk is. De kennis en ervaring van de chauffeur gaat voor op de kennis en ervaring van onze adviseurs.
- Zorg dat er voldoende ruimte is op de leverplaats voor zowel de vrachtwagen als de producten.
- Laat de pakketten op een vlakke ondergrond plaatsen en stapel ze niet op elkaar.
- Controleer de producten bij aankomst op eventuele onvolkomenheden. Neem bij twijfel direct contact met ons op. Bij onvolkomenheden aan het product geldt namelijk; verwerken is accepteren.
Tijdig bestellen
Zorg dat de materialen geruime tijd van tevoren worden geleverd, zodat je kunt controleren op eventuele transportschades en die tijdig kunt melden. Mocht er namelijk schade zijn ontstaan, dan hebben we nu nog tijd om e.e.a. op te lossen, zodat de verwerker niet vastloopt in de planning.
 
Betaling
Je kunt op deze site direct afrekenen. Wij bekijken elke order voordat wij je de bevestiging sturen. 
Een offerte-aanvraag plaatsen is ook mogelijk. Betaling volgt dan later. 
Zie ook: https://www.steencentrum.nl/klantenservice/bestellen
In de winkel kun je gewoon per pin of contant betalen. Ook betalen per factuur is mogelijk.
Een betaling moet echter altijd voor levering plaatsvinden. Bij regionale leveringen is pinnen of contant betalen bij de chauffeur mogelijk. 
Of de levering onder onze regionale voorwaarden valt bepalen wij bij beoordeling van de order- bestelaanvraag. 
Transporttarieven
Voor het bezorgen van grote en zware tuinmaterialen maken wij gebruik van een grote vrachtwagen. Hiervoor worden per bestelling de volgende kosten berekend:
- Regionaal: € 85,-
- Overig Nederland: op aanvraag
- Waddeneilanden en Zeeland: op aanvraag
- Eventuele toeslag: € 150,- als er voor levering extra vervoer of materiaal ingezet moet worden.
Afhalen: je kunt gratis een aanhanger lenen om zelf je materialen te halen.
Let op: je moet in het bezit zijn van rijbewijs BE.


 
                         
                         
                         
                                        
                                    
                                 
                                        
                                    
                                 
                                        
                                    
                                 
                            


 
             
             
             
             
             
             
             
             
            